Présentation
Résidence Rischard – Charmant appartement au 1er étage de 77,11 ² avec un balcon de 4,70 m².
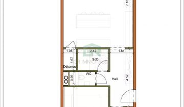
Il se compose de :
• Hall d’entrée.
• Séjour lumineux avec coin cuisine et accès balcon.
• 1 Chambre à coucher.
• Salle de douche.
• Débarras.
• Toilettes séparés.
La Résidence Rischard, composée de 14 appartements d’une à trois chambres, se distingue par une architecture innovante et conviviale. Prévue en construction bois de nouvelle génération, elle privilégie des matériaux durables et à faibles émissions, assurant une excellente isolation thermique et acoustique. Sa structure légère et performante favorise de très bonnes performances énergétiques et un confort intérieur tout au long de l’année, avec un recours autant que possible à des filières locales et à une empreinte carbone réduite.
Située à Bascharage, la résidence bénéficie d’un cadre pratique et agréable, proche des commerces, restaurants, crèches, écoles et de nombreuses infrastructures sportives et culturelles. La nature environnante reste facilement accessible, pour un équilibre de vie idéal.
Démarrage des travaux prévu début 2026
Le prix inclut le taux de TVA super réduit de 3 %.
La commission d’agence est à la charge du vendeur.
Pour plus d’informations ou pour organiser une visite à votre convenance, contactez-nous au 54 54 27 ou par e-mail à contact@grimmo.lu.
Caractéristiques
-
ID de la propriété :85843436
-
Surface habitable :77.11 m2
-
Chambres :1
-
Salle de bain :1
-
Prix :588.735 €
-
Statut de la propriété :
A proximité
- Crèche
- École primaire
- École secondaire
- Route principale
- Supermarché
Détails
- Hall d'entrée
- Séjour/cuisine : 38.86 m2
- Chambre : 18.62 m2
- Salle de douche : 4.03 m2
- Balcon : 4.7 m2
- Toilettes
- Débarras
Classe énergétique
| A | B | C | D | E | F | G | H | I |



